
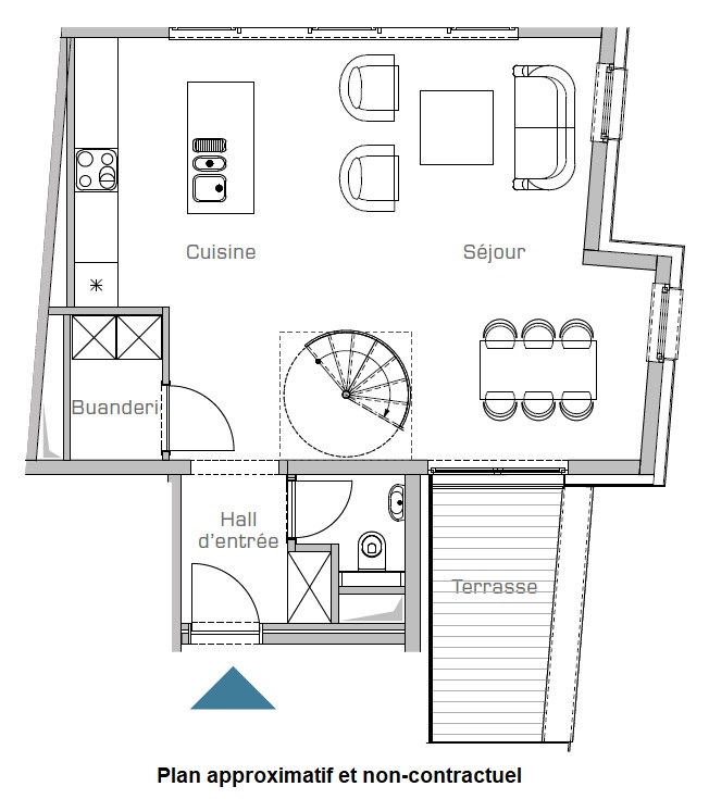
Dans un petit immeuble, très beau duplex de standing de +-106m² composé au 1er niveau de: hall d'entrée, toilette invités, lumineux séjour donnant sur une belle terrasse de +-7m², cuisine US hyper-équipée et buanderie. Nombreux placards de rangement dans le hall d'entrée.
Une cave privative en sous-sol, ainsi qu'un emplacement parking privatif (extérieur).
PEB B. Charges mensuelles: 230€ (syndic, charges communes, ascenseur, et provision pour la consommation privative de chauffage et eau).
Actuellement loué à de très bons locataires depuis 01/01/2019, loyer 1002,37€ + provision de charges.
Bel investissement, à proximité de la gare, du centre ville, et en face du nouveau tribunal de Namur.
Boulevard d'Herbatte 85 - 5000 Namur
Référence | 5408750 |
---|---|
Catégorie | Duplex |
Nombre de chambres | 3 |
Nombre de salles de bain | 1 |
Terrasse | Oui |
Parking | Oui |
Surface habitable | 90 m² |
Disponibilité | en fonct. du locataire |
Année de construction | 2013 |
---|---|
Parking extérieur | Oui |
Type de façade avant | crépi |
Parking(s) extérieur (nombre) | 1 |
Etage | 1 |
---|---|
Nombre d'étages | 2 |
Cuisine | Oui |
---|---|
Chauffage (ind/coll) (type (ind/coll)) | individuel |
Ascenseur | Oui |
Double vitrage | Oui |
Chauffage (type) | gaz (chau. centr.) |
Videophone | Oui |
Buanderie | Oui |
---|---|
Lave-vaisselle | Oui |
Téléphone | Oui |
Marque de lave-vaisselle | de la marque Siemens |
Cave | Oui |
Nbre de toilette(s) (nombre) | 2 |
---|---|
Chambre 1 (surface) | 8.73 m² |
Chambre 2 (surface) | 10.1 m² |
Chambre 3 (surface) | 8.9 m² |
Surface nette | 87 m² |
Largeur de façade | 9 |
Cuisine (surface) | 0 m² |
Buanderie (surface) | 2.57 m² |
Salle de bain 1 (surface) | 6.73 m² |
Caves (surface) | 4.22 m² |
Nbre de pièce(s) (nombre) | 9 |
Transports en commun (distance (m)) | 80 |
---|---|
Transports en commun | Oui |
Autoroute | Oui |
Autoroute (distance (m)) | 2700 |
Précompte immobilier (montant) | 1776.06 € |
---|
Charges locataire (montant) | 200 € |
---|---|
Sous régime TVA | Non |
Loué | Oui |
Fenêtres | Oui |
---|---|
Centrale tél. | Oui |
Châssis (type) | pvc |
Égouts | Oui |
---|---|
Électricité | Oui |
Télévision par cable | Oui |
Câbles téléphoniques | Oui |
Type d'environnement | central |
---|---|
Exposition de la façade avant | est |
Surface de terrasse 1 | 7 m² |
---|
Type de revêtement de sol | carrelages |
---|
Revenu cadastral (€) (montant) | 1660 € |
---|
Certificat d'électricité (oui/non) | oui, conforme |
---|
Label PEB (classe) | B |
---|---|
PEB E-SPEC (kwh/m²/an) | 116 |
Emission CO2 (émission CO2) | 13 |
E total (Kwh/an) | 13431 |
PEB code unique | 20161116502510 |
PEB valide jusqu'au (datetime) | 16/11/2026 |