Résidences-services - option v. - 5000 Namur -

Résidences-services - à vendre - 5000 Namur
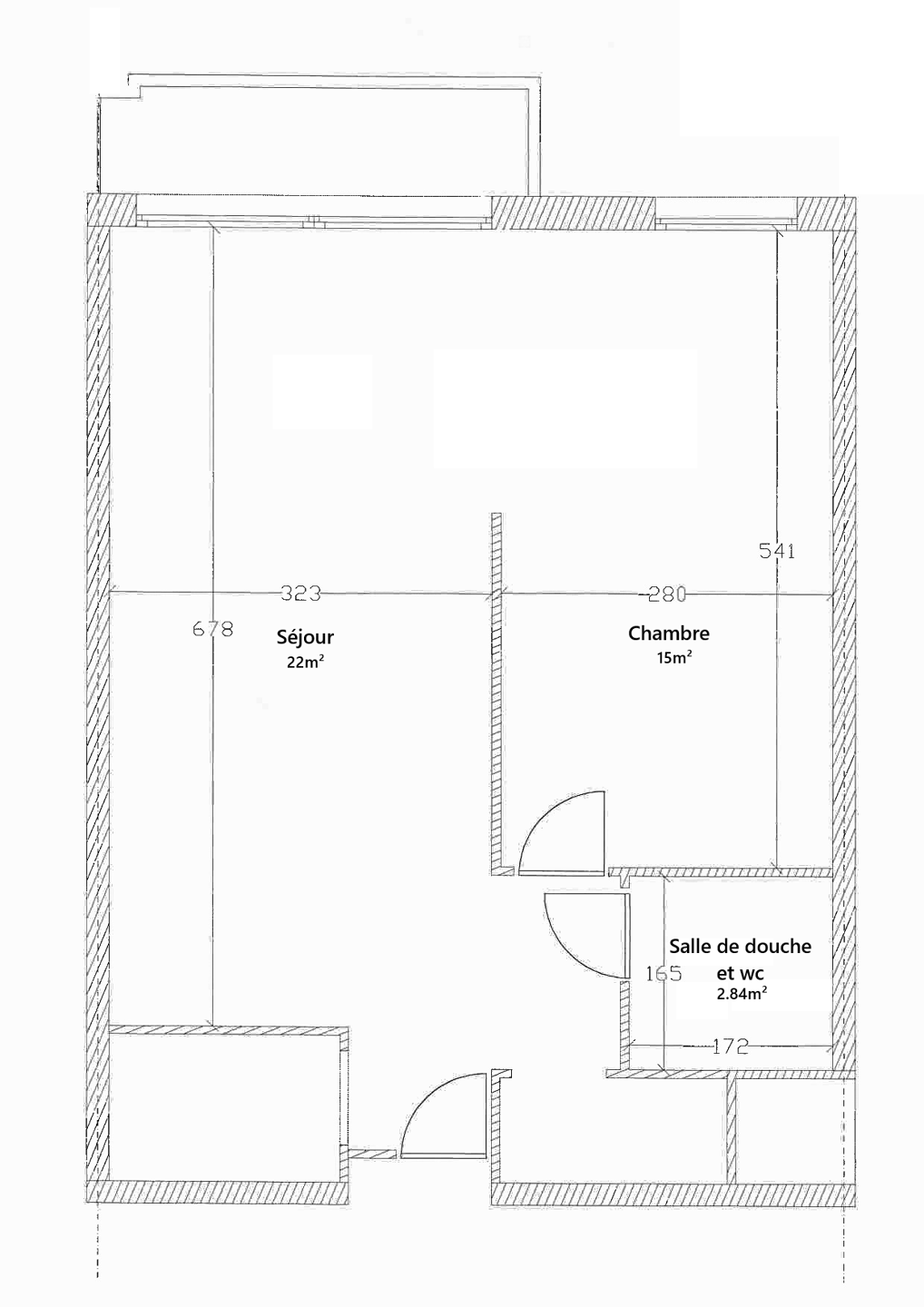
1 1 45 m² PEB : G

Description

🖋️🔒 O P T I O N 🔒🖋️

Nam Property vous présente cet appartement 1 chambre avec balcon – Résidence La Seigneurie, Galerie d’Harscamp à Namur.

Situé au cœur de Namur, au sein de la prestigieuse Résidence La Seigneurie, cet élégant appartement une chambre offre un cadre de vie sécurisé, pratique et confortable, pensé pour les personnes à la recherche de sérénité tout en etant au coeur du centre ville.
L'appartement est actuellement loué à une nonagénère au prix de 500€ + charges communes.

Composition de l’appartement :

  • Une chambre

  • Une salle de douche et un wc séparé

  • Un séjour confortable avec coin salon et kitchenette

  • Un agréable balcon pour profiter d’un bol d’air frais

  • Un local de rangement privatif

Les atouts de La Seigneurie :

  • Une résidence avec services, adaptée aux seniors autonomes ou semi-autonomes

  • Une accueil 7j/7 et la présence de personnel pour veiller au bien-être des résidents

  • Espaces communs conviviaux : salon, restaurant, terrasses, bibliothèque, salon de coiffure, animations…

  • Une sécurité rassurante : accès contrôlé, ascenseur, assistance possible

  • Environnement calme et soigné, à quelques pas du centre historique de Namur

  • Commodités immédiates : pharmacie, commerces, transports en commun, marché local

Un emplacement exceptionnel :
Nichée dans la Galerie d’Harscamp, la résidence bénéficie d’un accès direct à la ville tout en étant protégée de son agitation. Un lieu parfait pour allier autonomie, confort et lien social.

Pour les renseignements sur les frais de la résidence, voir le document à télécharger sur notre site.

Adresse

Galerie Jardin d'Harscamp 5 Boîte 75 - 5000 Namur

Général

Référence 7228976
Catégorie Résidences-services
Nombre de chambres 1
Nombre de salles de bain 1
Terrasse Oui
Surface habitable 45 m²
Disponibilité en fonct. du locataire

Equipement de base

Accès handicapés Oui
Cuisine Oui
Ascenseur Oui
Double vitrage Oui
Chauffage (Format/energie) gaz (chau. centr.)
Type d'ascenseur personnes
Type de cuisine amer. équipée

Charges & Rendement

Charges locataire (montant) 240 €
Sous régime TVA Non
Loué Oui

Sécurité

Contrôle d'accès Oui
Sécurité Oui
Concierge Oui
Porte blindée Oui

Équipements techniques

Châssis (Ouvertures) aluminium

Caractéristiques Principales

Surface de terrasse 1 3 m²

Certificats / Attestations

Certificat d'électricité (oui/non) oui, conforme

Energie

Label PEB (Classe) G
PEB E-SPEC (kwh/m²/an) (Consommation énergétique) 607
E total (Kwh/an) 26838
PEB code unique (-) 20220608000626
PEB valide jusqu'au (validité) 08/06/2032
Date du PEB 08/06/2022
Prendre contact pour le bien : 7228976

* Champs obligatoires

Préférences pour les cookies

La protection de vos données personnelles est importante pour nous. C’est pourquoi nous détaillons ci-dessous les différents services et fonctionnalités du site qui utilisent des cookies et nous vous laissons décider des cookies que vous souhaitez autoriser ou refuser.

Veuillez cependant noter que si vous bloquez certains types de cookies, cela pourrait impacter votre expérience de navigation sur notre site ainsi que les fonctionnalités disponibles.

Nous utilisons des cookies fonctionnels obligatoires pour assurer le bon fonctionnement du site. Ils sont, par exemple, nécessaires pour retrouver le résultat d’une recherche ou enregistrer le choix de la langue.

Certaines fonctionnalités, comme l’affichage de vidéos ou de cartes géographiques, sont assurées via des composants externes développés par des partenaires comme YouTube ou Google. Certains composants utilisent des cookies qui sont susceptibles de permettre à ces tiers de suivre le comportement des internautes afin, par exemple, de réaliser du ciblage publicitaire. L’activation de ces fonctionnalités et des cookies associés est donc soumis à votre consentement.