
VENDU VENDU VENDU
Nam Property vous présente cette opportunité d'investissement , parfaite comme premier achat immobilier.
Situé à Champion, cet appartement bénéficie d'une localisation idéale, à proximité immédiate de toutes les commodités essentielles telles que le Brico, le Medi-Market, Lidl et bien d'autres commerces, tout en restant proche des accès routiers.
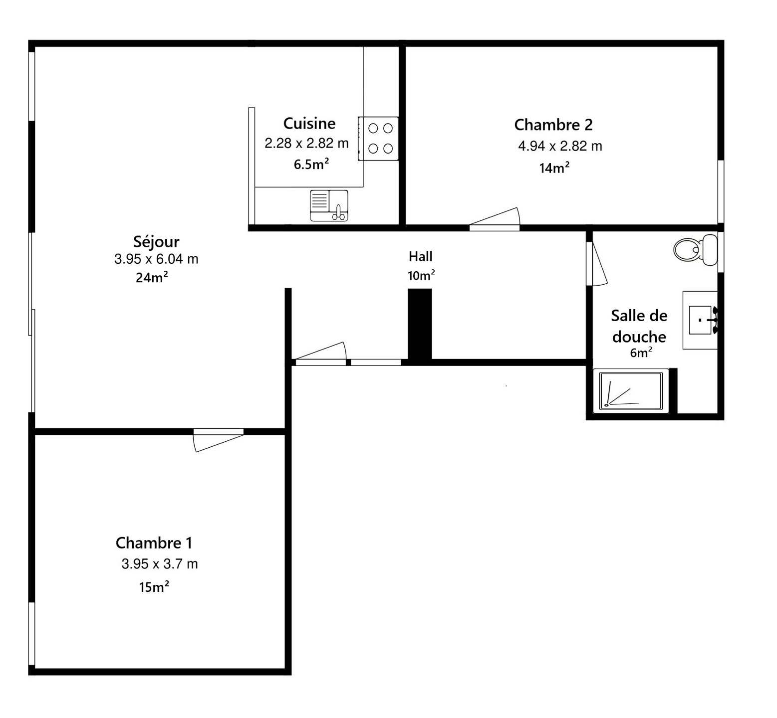
Ce joli appartement a été rénové en 2020 et offre un séjour lumineux, une cuisine équipée moderne de marque IXINA comprenant une taque vitro , un réfrigérateur, un congélateur et une hotte et un lave vaisselle.
Il comprend également deux grandes chambres, une salle de douche et jouit d'un jardin ensoleillé, offrant un espace extérieur agréable et privatif.
Une place de parking est également incluse.
225.000€ (Offre soumise à l'accord des propriétaires)
Opportunité à ne pas manquer!
Référence | 6691311 |
---|---|
Catégorie | Appartement |
Nombre de chambres | 2 |
Nombre de salles de bain | 1 |
Jardin | Oui |
Surface du jardin | 102 m² |
Surface habitable | 78 m² |
Disponibilité | à l'acte |
Parking extérieur | Oui |
---|---|
Année de rénovation | 2020 |
Accès handicapés | Oui |
---|---|
Cuisine | Oui |
Ascenseur | Non |
Double vitrage | Oui |
Chauffage (type) | gaz |
Type de cuisine | amer. équipée |
Double vitrage (type) | isol. acoustique |
Nbre de toilette(s) (nombre) | 1 |
---|---|
Chambre 1 (surface) | 15 m² |
Chambre 2 (surface) | 14 m² |
Salle de séjour (surface) | 24 m² |
Cuisine (surface) | 6.5 m² |
Salle de bain 1 (surface) | 6 m² |
Précompte immobilier (montant) | 703 € |
---|
Sous régime TVA | Non |
---|---|
Loué | Non |
Servitude | Non |
---|
Égouts | Oui |
---|---|
Électricité | Oui |
Gaz | Oui |
Eau | Oui |
Châssis (type) | pvc |
---|
Magasins | Oui |
---|---|
Ecoles | Oui |
Transports en commun | Oui |
Centre sportif | Oui |
Autoroute | Oui |
Certificat d'électricité (oui/non) | oui, conforme |
---|
Label PEB (classe) | C |
---|---|
PEB E-SPEC (kwh/m²/an) | 215 |
E total (Kwh/an) | 19246 |
PEB code unique | 20240613008613 |
PEB valide jusqu'au (datetime) | 13/06/2034 |
Date du PEB (datetime) | 13/06/2024 |