Immeuble à appartements - vendu - 5000 Namur -

Immeuble à appartements - à vendre - 5000 Namur
3 3 294 m² PEB : C

Description

🖋️🔒 O P T I O N 🔒🖋️

Nam Property vous présente un bel immeuble à rénover, situé en face de la nouvelle gare de Namur, dans un quartier en pleine expansion.

Cet immeuble se compose d’un rez-de-chaussée commercial, anciennement occupé par la boulangerie Schamp, actuellement disponible pour toute activité (loyer potentiel de 3 000 €). Le local a une superficie de 67m², et 4,5m de largeur façade.

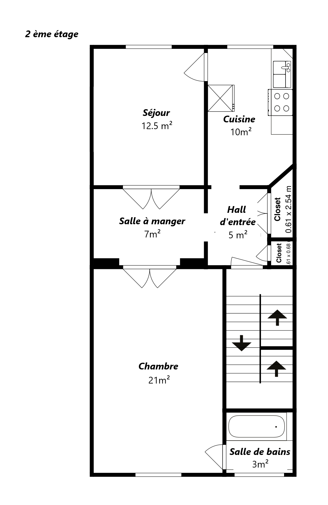
Aux étages, on retrouve un appartement par niveau, avec la possibilité d’aménager un quatrième appartement au niveau du grenier. Ces quatre unités font chacune près de 60m².

L’immeuble dispose de 4 compteurs de gaz, 4 compteurs électriques et 1 compteur d’eau. Les châssis des étages ont été remplacés en 2024.

PEB en attente

Les attestations de conformité électrique sont valables jusqu’en 2029 pour les trois appartements existants.

Adresse

Avenue de la Gare 17 - 5000 Namur

Documents

Général

Référence 7276377
Catégorie Immeuble à appartements
Nombre de chambres 3
Nombre de salles de bain 3
Terrasse Non
Surface habitable 294 m²
Surface du terrain 119 m²
Disponibilité à l'acte

Nom, catégorie & situation

Nombre d'étages (numéro) 4

Equipement de base

Cuisine Oui
Chauffage (ind/coll) (type (ind/coll)) individuel
Double vitrage Oui
Chauffage (Format/energie) gaz
Type de cuisine séparée

En chiffres

Chambre 1 (surface) 21 m²
Salle de séjour (surface) 13 m²
Salle à manger (surface) 7 m²
Cuisine (surface) 10 m²

Coûts & Frais

Précompte immobilier (montant) 7992.83 €

Cadastre

Revenu cad. indexé (montant) 6551 €

Charges & Rendement

Sous régime TVA Non
Loué Non

Équipements techniques

Châssis (Ouvertures) pvc

Certificats / Attestations

Certificat d'électricité (oui/non) oui, conforme

Certificats énergétiques

Label PEB (Classe) C
PEB code unique (-) 20250324031020
PEB valide jusqu'au (validité) 24/03/2035
Prendre contact pour le bien : 7276377

* Champs obligatoires

Préférences pour les cookies

La protection de vos données personnelles est importante pour nous. C’est pourquoi nous détaillons ci-dessous les différents services et fonctionnalités du site qui utilisent des cookies et nous vous laissons décider des cookies que vous souhaitez autoriser ou refuser.

Veuillez cependant noter que si vous bloquez certains types de cookies, cela pourrait impacter votre expérience de navigation sur notre site ainsi que les fonctionnalités disponibles.

Nous utilisons des cookies fonctionnels obligatoires pour assurer le bon fonctionnement du site. Ils sont, par exemple, nécessaires pour retrouver le résultat d’une recherche ou enregistrer le choix de la langue.

Certaines fonctionnalités, comme l’affichage de vidéos ou de cartes géographiques, sont assurées via des composants externes développés par des partenaires comme YouTube ou Google. Certains composants utilisent des cookies qui sont susceptibles de permettre à ces tiers de suivre le comportement des internautes afin, par exemple, de réaliser du ciblage publicitaire. L’activation de ces fonctionnalités et des cookies associés est donc soumis à votre consentement.