
VISITES DEJA SUSPENDUES !
Nam Property vous présente cette charmante maison trois chambres
Idéalement située, cette agréable maison 3 façades allie le charme de l’ancien au confort moderne.
Elle offre des espaces lumineux et fonctionnels, ainsi qu’un jardin bien orienté et joliment aménagé.
Composition :
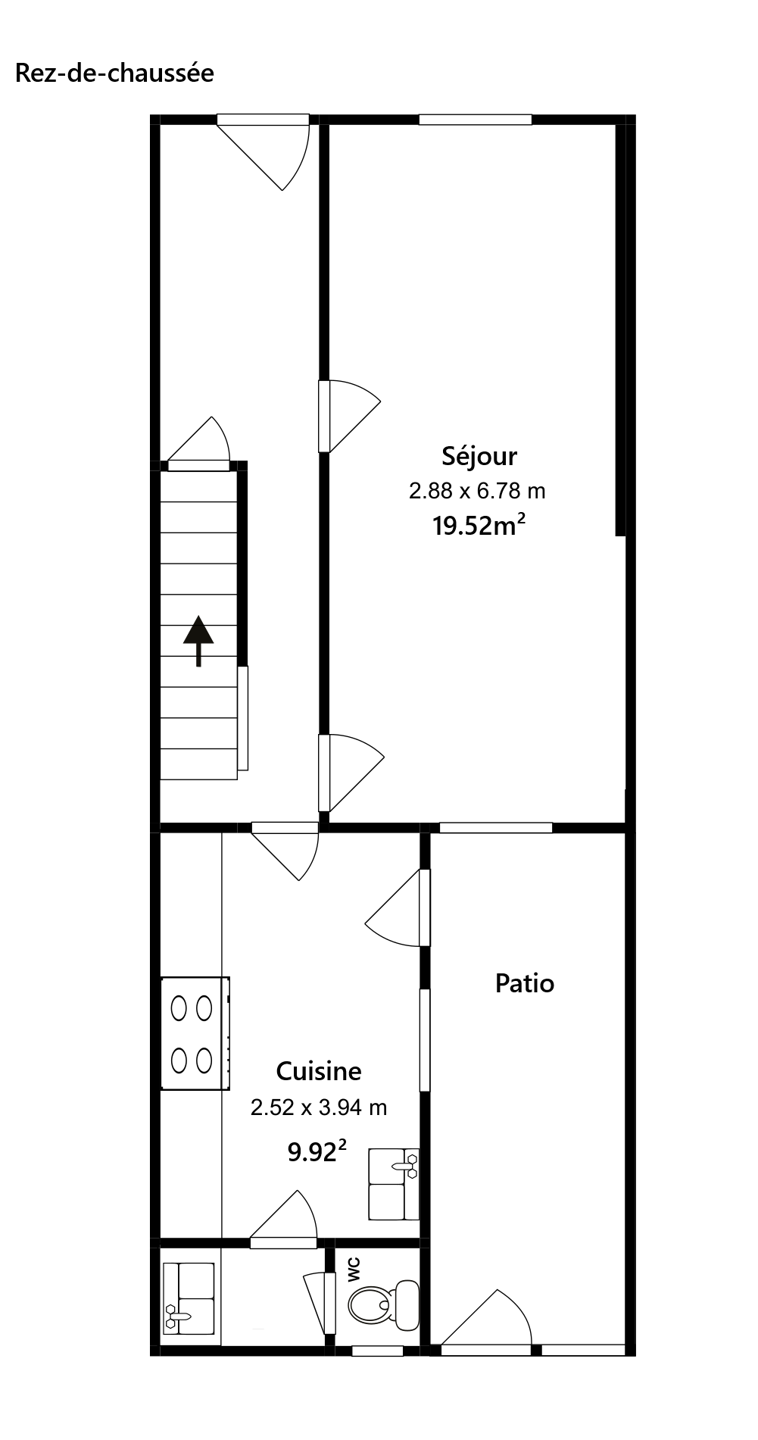
Rez-de-chaussée :
Hall d'entrée, séjour, cuisine équipée (four, taques au gaz, hotte, lave-vaisselle, nombreux rangements), véranda de 2019 avec Velux et stores intégrés, accès direct au jardin.
1er étage :
Deux belles chambres et une salle de bains moderne (rénovée en 2015).
2e étage :
Troisième chambre avec espace bureau, ainsi qu’un grenier isolé.
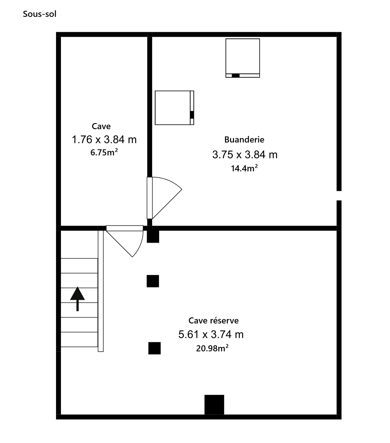
Cave :
Espace de rangement et buanderie.
Extérieurs :
Jardin clôturé, bien entretenu, avec terrasse et abri de jardin.
Équipements techniques :
Citerne d’eau de pluie de 10 m³ avec groupe hydrophore
Chauffage central au gaz de ville (chaudière Vaillant – 2009)
Boiler Atlantic 150L (2023)
Panneaux photovoltaïques (3.200 kWh) pour une consommation énergétique maîtrisée
Châssis PVC double vitrage récents (2022) à l’avant (2019) à l'arrière.
Volets mécaniques sur toutes les fenêtres
Toiture principale en tuiles vernissées semi-mattes, toiture annexe en Eternit
Toiture isolée
Une maison confortable, économe en énergie, prête à accueillir votre famille sans travaux à prévoir.
Possibilité de louer des box de garage à proximité.
Prix demandé 265.000€ (offre soumise à acceptation des propriétaires).
Référence | 6789857 |
---|---|
Catégorie | Maison |
Nombre de chambres | 3 |
Nombre de salles de bain | 1 |
Jardin | Oui |
Terrasse | Oui |
Surface habitable | 115 m² |
Surface du terrain | 194 m² |
Disponibilité | 01/12/2025 |
Accès handicapés | Non |
---|---|
Cuisine | Oui |
Chauffage (ind/coll) (type (ind/coll)) | individuel |
Double vitrage | Oui |
Chauffage (type) | gaz (chau. centr.) |
Type de cuisine | équipée |
Buanderie | Oui |
---|---|
Véranda | Oui |
Bureau | Oui |
Grenier | Oui |
Cave | Oui |
Chambre 1 (surface) | 10 m² |
---|---|
Chambre 2 (surface) | 10 m² |
Chambre 3 (surface) | 11 m² |
Salle de séjour (surface) | 21 m² |
Cuisine (surface) | 10 m² |
Grenier (surface) | 12 m² |
Bureau (surface) | 6 m² |
Volets | Oui |
---|
Sous régime TVA | Non |
---|---|
Loué | Non |
Égouts | Oui |
---|---|
Électricité | Oui |
Gaz | Oui |
Eau | Oui |
Châssis (type) | pvc |
---|
Magasins | Oui |
---|---|
Ecoles | Oui |
Transports en commun | Oui |
Autoroute | Oui |
Certificat d'électricité (oui/non) | oui, non conforme |
---|
Label PEB (classe) | C |
---|---|
E total (Kwh/an) | 220 |
PEB code unique | 20250512028380 |
PEB valide jusqu'au (datetime) | 12/05/2035 |
Date du PEB (datetime) | 12/05/2025 |
VAT applied on building (percentage (%)) | 485 |
---|