
Nam Property vous présente cette maison de plain-pied entièrement rénovée en 2021, offrant d’excellentes performances énergétiques.
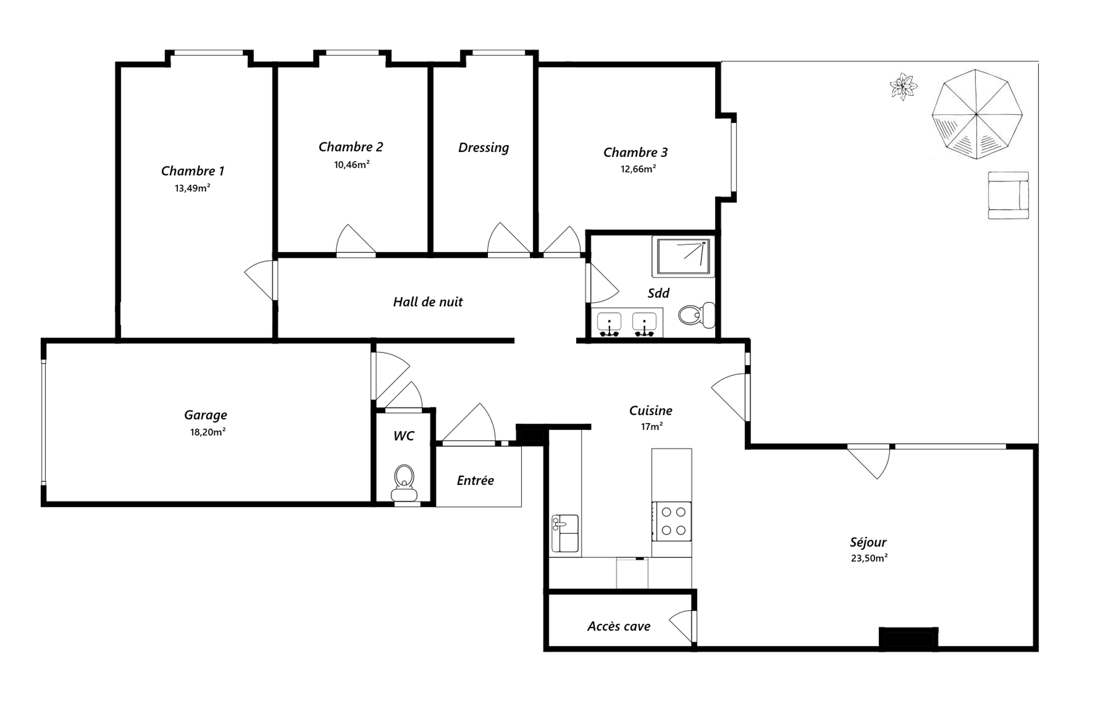
Elle se compose d’un spacieux séjour lumineux ouvert sur une cuisine super équipée, d’un hall de jour avec WC indépendant, ainsi que d’un garage actuellement aménagé en buanderie, équipé d’un double évier.
Le hall de nuit dessert trois belles chambres, un dressing et une salle de douche moderne. Deux grandes caves viennent compléter l’ensemble.
À l’extérieur, vous profiterez d’une vaste terrasse et d’un agréable jardin exposé plein sud. Un abri de jardin offre un espace de rangement supplémentaire.
Les rénovations en profondeur réalisées en 2021 comprennent :
Châssis en PVC avec triple vitrage
Panneaux photovoltaïques d’une puissance de 6 kW
Système d’alarme Verisure
Boiler thermodynamique
Raccordement de la citerne d’eau de pluie à l’ensemble du réseau sanitaire (hors cuisine)
Poêle à pellets de 4,5 kW
Isolation de 20 cm en plafond
Isolation complète des murs périphériques
Prix demandé : 315 000 €
Offre soumise à l'accord des propriétaires.
Intéressé(e) ? Contactez-nous dès maintenant pour organiser une visite !
Référence | 6678866 |
---|---|
Catégorie | Maison |
Nombre de chambres | 3 |
Nombre de salles de bain | 1 |
Jardin | Oui |
Surface du jardin | 270 m² |
Garage | Oui |
Terrasse | Oui |
Parking | Oui |
Surface habitable | 85 m² |
Surface du terrain | 355 m² |
Disponibilité | à l'acte |
Année de construction | 1971 |
---|---|
Nombre de garage | 1 |
Parking extérieur | Oui |
Année de rénovation | 2021 |
Type de toit | toit plat |
Etage | 1 |
---|---|
Nombre d'étages | 0 |
Surface bâtie (surf. bât. princ.) | 30 |
---|---|
Chambre 1 (surface) | 11 m² |
Chambre 2 (surface) | 10 m² |
Chambre 3 (surface) | 13 m² |
Nbre de terrasse(s) (nombre) | 1 |
Salle de séjour (surface) | 22 m² |
Cuisine (surface) | 15 m² |
Dressing (surface) | 7 m² |
Orientation de la terrasse 1 | sud |
Magasins (distance (m)) | 500 |
---|---|
Écoles (distance (m)) | 1000 |
Transports en commun (distance (m)) | 250 |
Centre sportif (distance (m)) | 1000 |
Magasins | Oui |
Ecoles | Oui |
Transports en commun | Oui |
Centre sportif | Oui |
Autoroute | Oui |
Autoroute (distance (m)) | 1000 |
Double vitrage | Oui |
---|---|
Chauffage (type) | pellets |
Type de cuisine | amer. super-équipée |
Double vitrage (type) | isol. acoustique |
Sous régime TVA | Non |
---|---|
Loué | Non |
Égouts | Oui |
---|---|
Électricité | Oui |
Télévision par cable | Oui |
Câbles téléphoniques | Oui |
Eau | Oui |
Châssis (type) | pvc |
---|
Type d'environnement | résidentiel |
---|---|
Exposition de la façade avant | nord |
Surface de terrasse 1 | 30 m² |
---|
Alarme | Oui |
---|
Citerne d'eau | Oui |
---|
Certificat d'électricité (oui/non) | oui, conforme |
---|
Cave | Oui |
---|
Label PEB (classe) | C |
---|---|
PEB E-SPEC (kwh/m²/an) | 199 |
PEB code unique | 20250330008425 |
PEB valide jusqu'au (datetime) | 30/03/2035 |
Date du PEB (datetime) | 30/03/2025 |