Immeuble à appartements - option v. - 5100 Namur -

Immeuble à appartements - à vendre - 5100 Namur
3 2 178 m² PEB : C

Description

🖋️🔒 O P T I O N 🔒🖋️

Nam Property vous présente cette belle opportunité d’investissement : un immeuble à appartements composé de deux lots, idéalement situé dans une rue calme et résidentielle de Jambes.

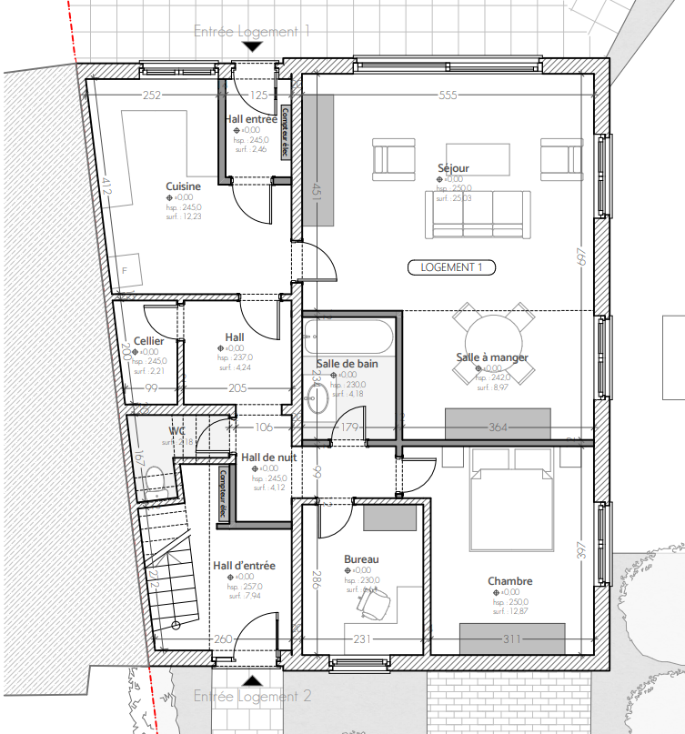
🔹 Rez-de-chaussée – appartement avec jardin
Cet appartement offre un cadre de vie agréable et fonctionnel. Il se compose d’un hall d’entrée, d’une cuisine, d’un spacieux séjour lumineux, d'une chambre, un bureau , d’une salle de bains et d’un WC indépendant. Le jardin privatif constitue un véritable atout, recherché tant par les occupants que par les investisseurs.

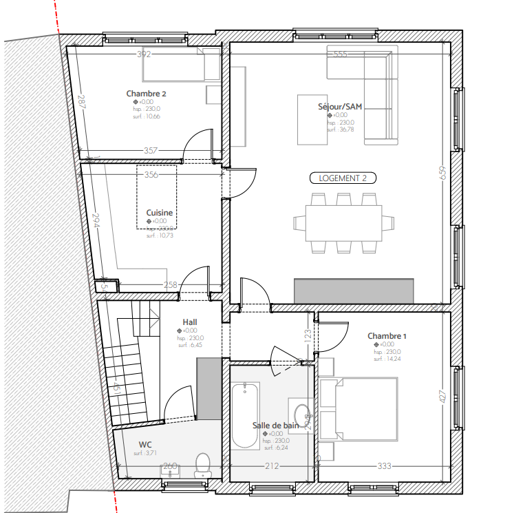
🔹 Premier étage – appartement 2 chambres
Le premier étage accueille un second appartement, également très lumineux, comprenant une cuisine, un grand séjour, deux chambres, une salle de bains et un WC séparé. Des volumes confortables et une distribution efficace qui séduiront facilement les locataires.

Travaux à prévoir : remplacement des châssis et remise au goût du jour générale.

📍 Un emplacement privilégié à Jambes – Rue de l’Orjo
La Rue de l’Orjo est appréciée pour son environnement paisible tout en restant proche de toutes les commodités : commerces, écoles, transports en commun et axes routiers principaux. Le centre de Namur, les bords de Meuse et la gare de Jambes sont accessibles en quelques minutes, offrant un parfait équilibre entre calme résidentiel et vie urbaine.

💡 Idéal pour investisseurs ou familles souhaitant combiner rendement locatif et situation stratégique dans l’un des quartiers les plus recherchés de Jambes.

📞 À découvrir sans tarder avec Nam Property. Prix demandé 375.000€ (sous réserve d'acceptation des propriétaires).

Documents

Général

Référence 7322503
Catégorie Immeuble à appartements
Nombre de chambres 3
Nombre de salles de bain 2
Jardin Oui
Surface du jardin 100 m²
Terrasse Oui
Surface habitable 178 m²
Surface du terrain 317 m²
Disponibilité à l'acte

Bâtiment

Parking extérieur Oui

Equipement de base

Cuisine Oui
Chauffage (ind/coll) (type (ind/coll)) individuel
Double vitrage Oui
Chauffage (type) gaz

En chiffres

Chambre 1 (surface) 10 m²
Chambre 2 (surface) 12 m²
Chambre 3 (surface) 14 m²
Salle de séjour (surface) 33 m²
Cuisine (surface) 11 m²
Bureau (surface) 6 m²

À proximité

Écoles (distance (m)) 1400
Magasins Oui
Ecoles Oui
Transports en commun Oui
Autoroute Oui
Autoroute (distance (m)) 16000

Coûts & Frais

Précompte immobilier (montant) 2204 €

Charges & Rendement

Sous régime TVA Non
Loué Non

Raccordements

Égouts Oui
Électricité Oui
Télévision par cable Oui
Gaz Oui
Câbles téléphoniques Oui
Eau Oui

Équipements techniques

Châssis (type) bois

Caractéristiques Principales

Surface de terrasse 1 8 m²

Certificats / Attestations

Certificat d'électricité (oui/non) oui, non conforme

Certificats énergétiques

Label PEB (classe) C
PEB E-SPEC (kwh/m²/an) 218
E total (Kwh/an) 27796
PEB code unique 20260111002535
PEB valide jusqu'au (datetime) 11/01/2036
Date du PEB (datetime) 11/01/2026
Prendre contact pour le bien : 7322503

* Champs obligatoires

Préférences pour les cookies

La protection de vos données personnelles est importante pour nous. C’est pourquoi nous détaillons ci-dessous les différents services et fonctionnalités du site qui utilisent des cookies et nous vous laissons décider des cookies que vous souhaitez autoriser ou refuser.

Veuillez cependant noter que si vous bloquez certains types de cookies, cela pourrait impacter votre expérience de navigation sur notre site ainsi que les fonctionnalités disponibles.

Nous utilisons des cookies fonctionnels obligatoires pour assurer le bon fonctionnement du site. Ils sont, par exemple, nécessaires pour retrouver le résultat d’une recherche ou enregistrer le choix de la langue.

Certaines fonctionnalités, comme l’affichage de vidéos ou de cartes géographiques, sont assurées via des composants externes développés par des partenaires comme YouTube ou Google. Certains composants utilisent des cookies qui sont susceptibles de permettre à ces tiers de suivre le comportement des internautes afin, par exemple, de réaliser du ciblage publicitaire. L’activation de ces fonctionnalités et des cookies associés est donc soumis à votre consentement.