
Nam Property a le plaisir de vous présenter cette spacieuse demeure de caractère, idéalement située en bord de Meuse, dans le pittoresque village de Godinne. Offrant une vue panoramique exceptionnelle sur le Meuse et son île, cette maison lumineuse et chaleureuse séduit par ses volumes généreux et son agencement fonctionnel.
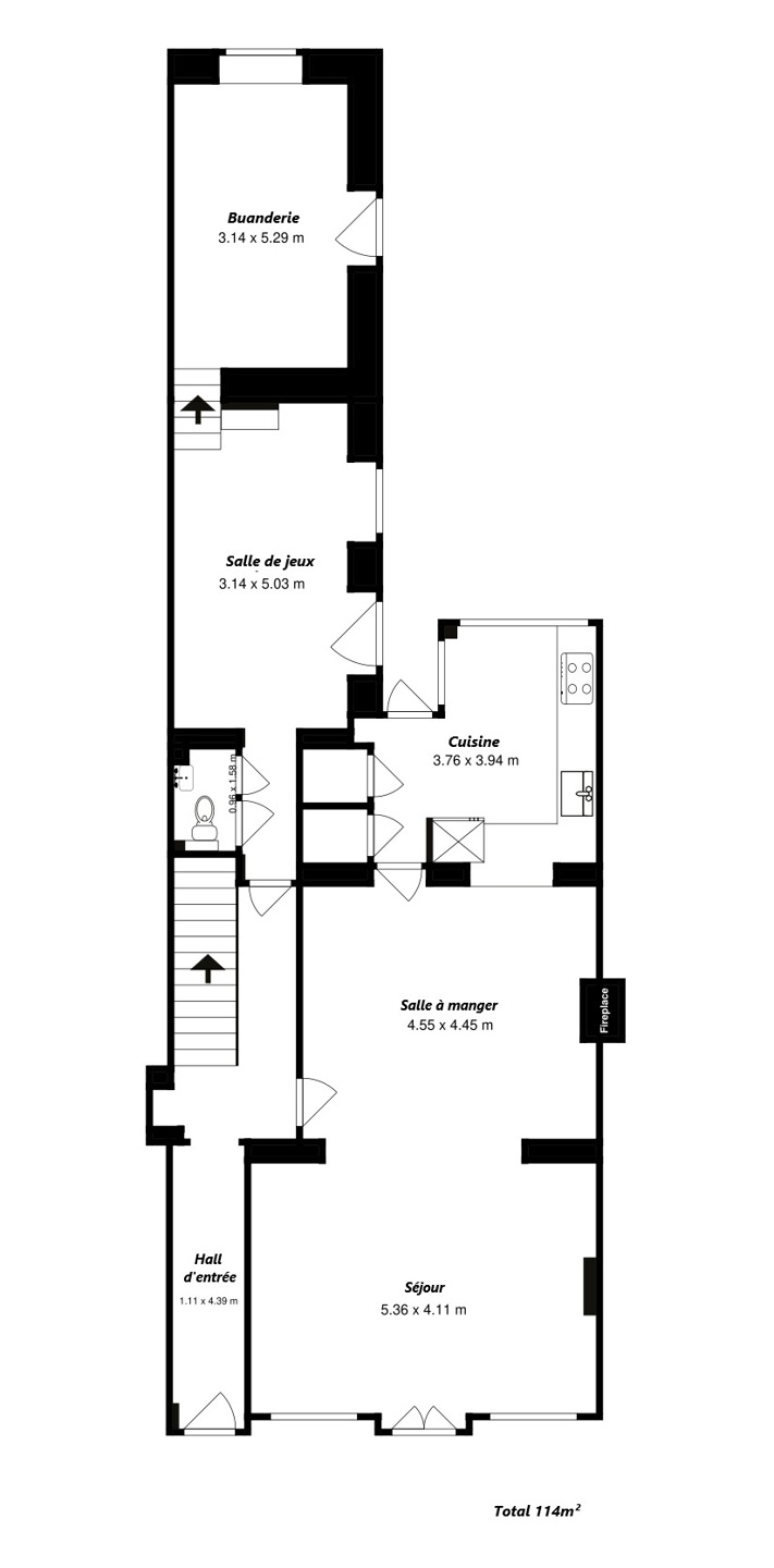
Dès l’entrée, vous serez charmé par ses espaces de vie ouverts et baignés de lumière. La maison comprend :
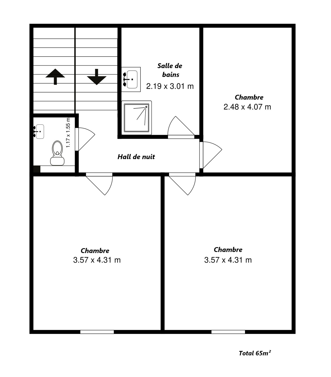
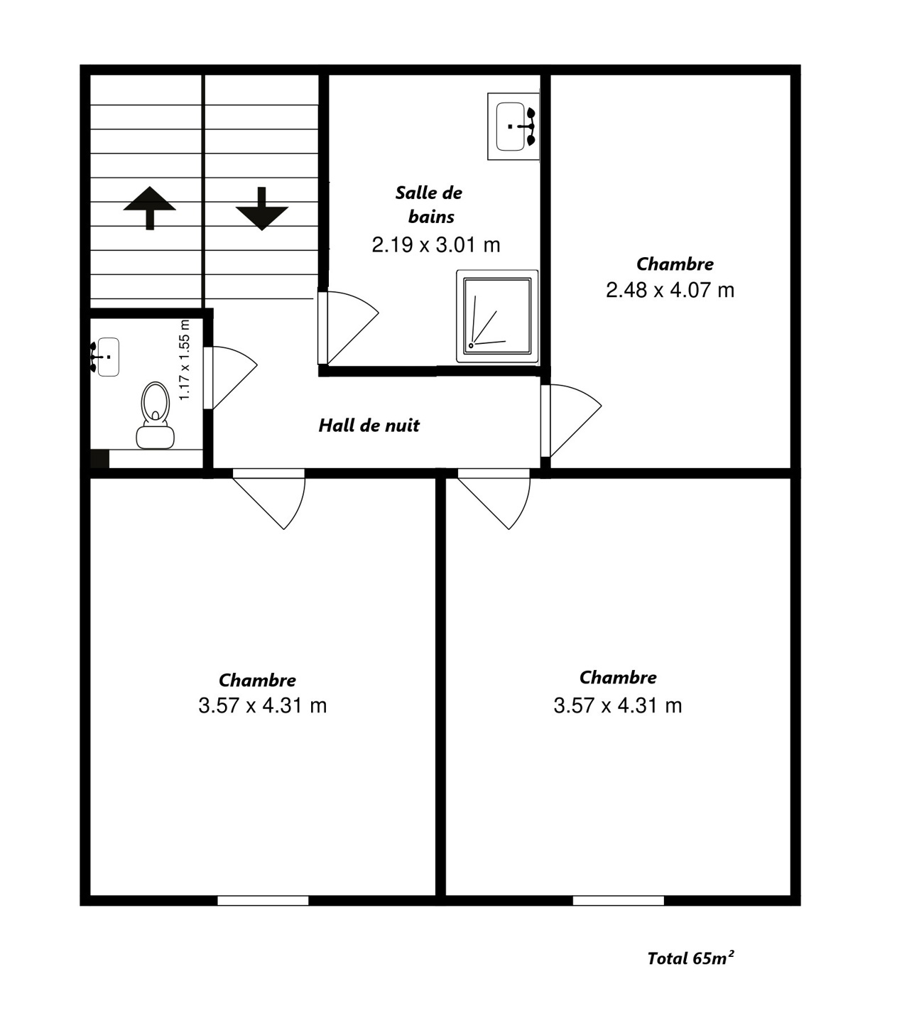
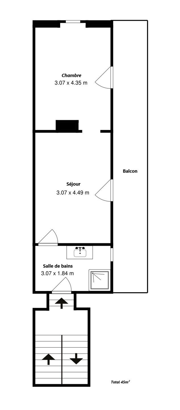
La distribution des chambres s'organise sur deux niveaux et deux demi-niveaux, comprenant huit chambres spacieuses et quatre salles de douche. Certains demi-niveaux disposent de chambres avec salle d’eau privative, un séjour et un balcon, parfaits pour profiter du cadre paisible.
À l’extérieur, un très beau jardin entièrement clos garantit intimité et tranquillité. Une dépendance à rénover offre un potentiel intéressant pour un atelier ou tout autre projet.
Cette demeure a été entièrement rénovée en 2024, avec une isolation renforcée réalisée sur les parois intérieures et des panneaux photovoltaïques pour une meilleure performance énergétique.
Idéale pour une famille nombreuse, elle offre également un fort potentiel locatif pour un projet de gîte ou chambres d’hôtes.
Prix demandé : 445 000 € (sous réserve d’acceptation des propriétaires).
Intéressé(e) ? Contactez-nous dès maintenant pour organiser une visite !
Référence | 6628147 |
---|---|
Catégorie | Maison de caractère |
Nombre de chambres | 8 |
Nombre de salles de bain | 4 |
Terrasse | Oui |
Surface habitable | 260 m² |
Surface du terrain | 581 m² |
Disponibilité | à l'acte |
Nombre d'étages | 3 |
---|
Parking extérieur | Oui |
---|---|
Année de rénovation | 2024 |
Type de toit | en pente |
Orientation du bâtiment (façade arrière) | sud |
---|---|
Exposition de la façade avant | nord |
Cuisine | Oui |
---|---|
Double vitrage | Oui |
Chauffage (type) | mazout (chauf. centr.) |
Type de cuisine | amer. super-équipée |
Double vitrage (type) | isol. thermique |
Buanderie | Oui |
---|---|
Cave | Oui |
Nbre de feu(x) ouvert (nombre) | 1 |
---|---|
Nbre de toilette(s) (nombre) | 4 |
Chambre 1 (surface) | 27 m² |
Chambre 2 (surface) | 15 m² |
Chambre 3 (surface) | 15 m² |
Chambre 4 (surface) | 10 m² |
Chambre 5 (surface) | 27 m² |
Salle de séjour (surface) | 22 m² |
Salle à manger (surface) | 21 m² |
Cuisine (surface) | 14 m² |
Buanderie (surface) | 12 m² |
Magasins (distance (m)) | 500 |
---|---|
Écoles (distance (m)) | 500 |
Transports en commun (distance (m)) | 10 |
Magasins | Oui |
Autoroute | Oui |
Autoroute (distance (m)) | 11500 |
Sous régime TVA | Non |
---|
Égouts | Oui |
---|---|
Électricité | Oui |
Télévision par cable | Oui |
Câbles téléphoniques | Oui |
Eau | Oui |
Châssis (type) | pvc |
---|
Surface de terrasse 1 | 30 m² |
---|
Capacité de la citerne à mazout (capacite) | 1500 |
---|---|
Certificat d'électricité (oui/non) | oui, conforme |
Certificat électricité - date | 12/04/2024 |
Label PEB (classe) | C |
---|---|
PEB E-SPEC (kwh/m²/an) | 227 |
PEB code unique | 2024/230003667 |
PEB valide jusqu'au (datetime) | 30/12/2034 |
Date du PEB (datetime) | 30/12/2024 |
Digicode | Oui |
---|